
$1,250,000875 / 877 Jones Street, Kelowna
Introduction
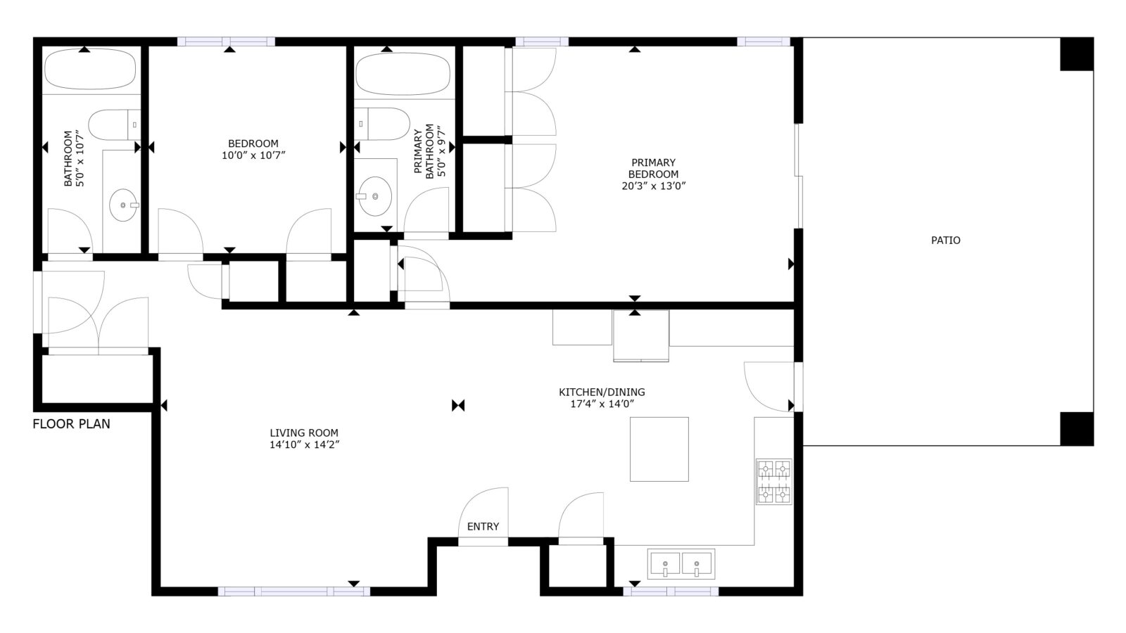
A unique opportunity to obtain two residences on one title in Kelowna’s growing North End! With walking distance to downtown and the water, this property offers a great location with proximity to beaches, breweries, parks, and more. The back home was built in 2016, and offers a 2 bedroom, 2 bathroom layout with an attached garage, all on one level. The layout is bright and open, and even offers a large patio space with room and rough-ins for a hot tub. High quality finishings are evident throughout, all to be expected with construction by the renowned Harmony Homes. The front home is a 2 bedroom, 1 bathroom home, with a variety of renovations that include windows (2010), roof and gutters (2015/16), HWT (2022), and floors upstairs (2020). This property offers a unique opportunity for investors with two completely separate homes, or even an owner occupier who wants to live in a 2016, newer residence while having a detached home to act as a mortgage helper. With the upcoming development anticipated at the Tolko Site, this is a prime location where you will be in walking distance to some of the best amenities in the Okanagan for years to come.
0.15Acres
2785sq.ft.
4Bedrooms
Scott Marshall
Personal Real Estate Corporation
Phone (250) 470-2388
Sotheby's International Realty Canada

Nate Cassie
Personal Real Estate Corporation
Phone 250-869-7995

Geoff Hall
Phone 250-575-4292





Virtual Tour
Request
Contact the HCM Group
The HCM group is happy to assist in any way possible on the potential purchase or sale of any property here in the Okanagan Valley. With a history dating back to 1911, we know the area like the back of our hands.

